築地センタービル 5階
物件概要
物件番号
640-00022-30物件名
築地センタービル所在地
- 東京都中央区築地6-25-10
- アクセスマップ
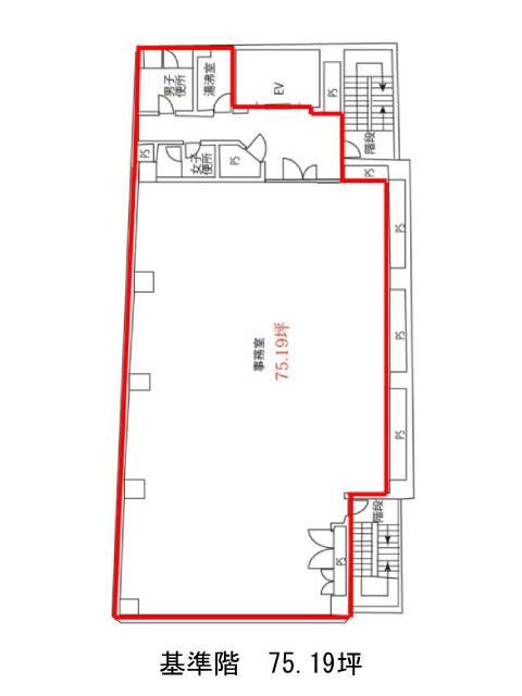
面積
75.19坪賃料(共益費含)
月額1,406,053円(18,700円/坪)
入居日
2026年3月中旬保証金
7,669,380円礼金
1ケ月更新料
新1ケ月償却費
なし竣工
1993年6月構造
SRC規模
地上11階/地下1階トイレ
男女別空調
個別空調エレベーター
有セキュリティ
駐車場
有耐震
新耐震基準基準階天井高
2500mm空室延床面積
225.57坪情報更新日
2026/02/19築地センタービルのテナント募集中区画
| 階数 | 面積 | 賃料(共益費含む) | 保証金 | 入居可能日 | 検討リスト | 詳細 |
|---|---|---|---|---|---|---|
| 5 | 75.19坪 | 1,406,053円/月(18,700円/坪) | 766万円 | 2026年3月中旬 | ||
| 6 | 75.19坪 | 1,406,053円/月(18,700円/坪) | 766万円 | 2026年4月上旬 | ||
| 9 | 75.19坪 | 1,902,307円/月(25,300円/坪) | 1,037万円 | 即 |
…新着物件
築地センタービルのアクセス
築地センタービルの物件情報
築地センタービル(中央区築地)は築地駅(1番出口)から徒歩5分の賃貸オフィスです。晴海通りに面して建てられている11階建てのビルです。外観は、黒を基調としたミラウォールが目立ち視認性抜群です。また、角地に立地しているため、、採光性は高いでしょう。1993年竣工ですがとても綺麗な物件です。室外には男女別のトイレがあります。間取りは長方形に近く、床はフリーアクセスのためレイアウトはしやすいでしょう。周辺は飲食店が多く、コンビニや郵便局も近くにあるので利便性の高いエリアです。築地センタービルは築地駅(1番出口)の他に築地市場駅(A1番出口)徒歩7分、東銀座駅(5番出口)徒歩8分で利用も可能です。

