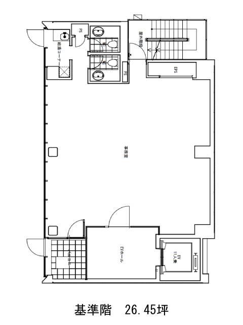
築地シティプラザ 2階
物件概要
築地シティプラザのテナント募集中区画
| 階数 | 面積 | 賃料(共益費含む) | 保証金 | 入居可能日 | 検討リスト | 詳細 |
|---|---|---|---|---|---|---|
| 2 | 26.45坪 | 応相談(応相談) | 応相談 | 即 |
…新着物件
アクセス
築地シティプラザの物件情報
築地シティプラザ(中央区築地)は新富町駅(出口)から徒歩2分の賃貸オフィスです。築地シティプラザは新富町駅(出口)の他に築地駅(4番出口)徒歩3分、東銀座駅(5番出口)徒歩8分で利用も可能です。

