7階は現在募集がありません
築地シティプラザ 7階
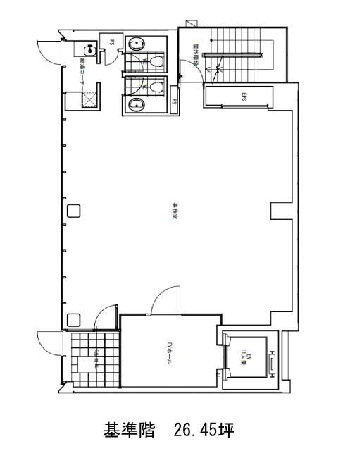
物件概要
築地シティプラザのテナント募集中区画
現在、空室がございません。
築地シティプラザのアクセス
築地シティプラザの物件情報
築地シティプラザ(中央区築地)は新富町駅(出口)から徒歩2分の賃貸オフィスです。築地シティプラザは新富町駅(出口)の他に築地駅(4番出口)徒歩3分、東銀座駅(5番出口)徒歩8分で利用も可能です。

