THE TERRACE TSUKIJI 2階 E
物件概要
物件番号
640-00322-15物件名
THE TERRACE TSUKIJI所在地
- 東京都中央区築地7-2-1
- アクセスマップ
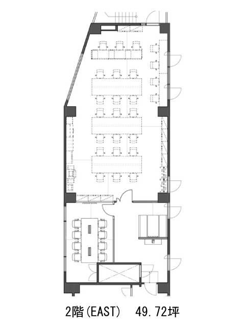
面積
49.72坪賃料(共益費含)
月額1,421,992円(28,600円/坪)
入居日
即保証金
7,756,320円礼金
なし更新料
なし償却費
なし竣工
2008年4月構造
S造規模
地上7階トイレ
男女別空調
個別空調エレベーター
有セキュリティ
有駐車場
有耐震
新耐震基準基準階天井高
空室延床面積
287.13坪情報更新日
2026/03/18THE TERRACE TSUKIJIのテナント募集中区画
…新着物件
THE TERRACE TSUKIJIのアクセス
THE TERRACE TSUKIJIの物件情報
THE TERRACE TSUKIJI(中央区築地)は築地駅(3番出口)から徒歩5分の賃貸オフィスです。居留地中央通りから少し入ったところに建てられている7階建てのビルです。あかつき公園冒険広場と隣接しているので採光性も良く、視認性は高いでしょう。2008年竣工ですが2019年にリニューアル済なので大変綺麗な物件です。外観はスタイリッシュで落ち着きのあるモダンなデザインです。トイレは男女別、床はOAフロアで機能的です。徒歩圏内には様々な飲食店が集まっているので、ランチタイムは食事が楽しめるでしょう。近くにはコンビニも複数あるので、買い物などで利用する際は便利です。THE TERRACE TSUKIJIは築地駅(3番出口)の他に新富町駅(6番出口)徒歩6分、東銀座駅(5番出口)徒歩11分で利用も可能です。

