3階は現在募集がありません
1フロア募集区画あり

高橋ビル 3階

前の写真 次の写真

物件概要

物件番号

640-00061-30

物件名

高橋ビル

所在地

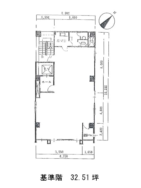
面積

32.51坪

賃料(共益費含)


入居日

募集終了

保証金

礼金

更新料

償却費

竣工

1978年5月

構造

規模

地上9階

トイレ

男女共用

空調

個別空調

エレベーター

セキュリティ

駐車場

耐震

旧耐震基準

基準階天井高

空室延床面積

32.51坪

最寄駅

情報更新日

2026/04/06

高橋ビルのテナント募集中区画

階数 面積 賃料(共益費含む) 保証金 入居可能日 検討リスト 詳細
4 32.51坪 590,056円/月(18,150円/坪) 422万円
…新着物件

高橋ビルのアクセス

高橋ビルの物件情報

高橋ビル(中央区築地)は東銀座駅(5番出口)から徒歩3分の賃貸オフィスです。
高橋ビルは東銀座駅(5番出口)の他に築地駅(2番出口)徒歩4分、新富町駅(出口)徒歩6分で利用も可能です。

近隣のエリア・駅から探す