高橋ビル 4階
物件概要
物件番号
640-00061-40物件名
高橋ビル所在地
- 東京都中央区築地1-13-11
- アクセスマップ
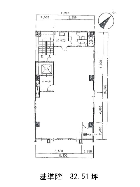
面積
32.51坪賃料(共益費含)
月額590,056円(18,150円/坪)
入居日
即保証金
4,226,300円礼金
なし更新料
新1ケ月償却費
なし竣工
1978年5月構造
規模
地上9階トイレ
男女共用空調
個別空調エレベーター
有セキュリティ
駐車場
有耐震
旧耐震基準基準階天井高
空室延床面積
32.51坪情報更新日
2026/03/11高橋ビルのテナント募集中区画
| 階数 | 面積 | 賃料(共益費含む) | 保証金 | 入居可能日 | 検討リスト | 詳細 |
|---|---|---|---|---|---|---|
| 4 | 32.51坪 | 590,056円/月(18,150円/坪) | 422万円 | 即 |
…新着物件
高橋ビルのアクセス
高橋ビルの物件情報
高橋ビル(中央区築地)は東銀座駅(5番出口)から徒歩3分の賃貸オフィスです。高橋ビルは東銀座駅(5番出口)の他に築地駅(2番出口)徒歩4分、新富町駅(出口)徒歩6分で利用も可能です。

