高橋ビルのテナント募集中区画
| 階数 | 面積 | 賃料(共益費含む) | 保証金 | 入居可能日 | 検討リスト | 詳細 |
|---|---|---|---|---|---|---|
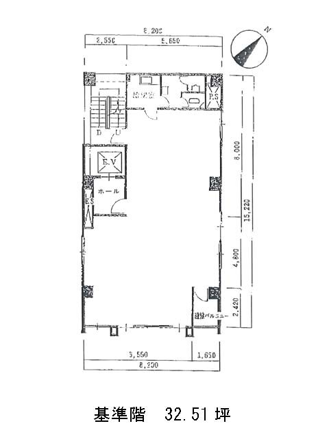
| 4 | 32.51坪 | 590,056円/月(18,150円/坪) | 422万円 | 即 |
…新着物件
高橋ビルのアクセス
高橋ビルの物件情報
高橋ビル(中央区築地)は東銀座駅(5番出口)から徒歩3分の賃貸オフィスです。高橋ビルは東銀座駅(5番出口)の他に築地駅(2番出口)徒歩4分、新富町駅(出口)徒歩6分で利用も可能です。

