ACN築地242ビル 2階
物件概要
物件番号
640-00081-40物件名
ACN築地242ビル所在地
- 東京都中央区築地2-4-2
- アクセスマップ
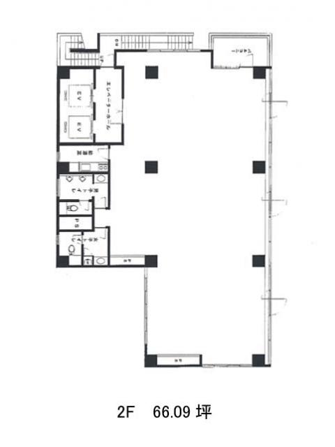
面積
66.09坪賃料(共益費含)
:応相談応相談
入居日
2026年6月保証金
応相談礼金
なし更新料
新1ケ月償却費
1ケ月竣工
1991年6月構造
SRC規模
地上9階/地下2階トイレ
男女別空調
個別空調エレベーター
有セキュリティ
有駐車場
無耐震
新耐震基準基準階天井高
2400mm空室延床面積
297.69坪情報更新日
2026/03/04ACN築地242ビルのテナント募集中区画
| 階数 | 面積 | 賃料(共益費含む) | 保証金 | 入居可能日 | 検討リスト | 詳細 |
|---|---|---|---|---|---|---|
| 地下2 | 63.00坪 | 応相談(応相談) | 応相談 | 2026年6月上旬 | ||
| 地下1 | 53.00坪 | 応相談(応相談) | 応相談 | 2026年6月上旬 | ||
| 1 | 47.50坪 | 応相談(応相談) | 応相談 | 2026年6月上旬 | ||
| 2 | 66.09坪 | 応相談(応相談) | 応相談 | 2026年6月 | ||
| 3 | 68.10坪 | 応相談(応相談) | 応相談 | 2026年6月上旬 |
…新着物件
ACN築地242ビルのアクセス
ACN築地242ビルの物件情報
ACN築地242ビル(中央区築地)は新富町駅(4番出口)から徒歩2分の賃貸オフィスです。新大橋通りを西へ入ってすぐの、静かな通りに面した地上9階・地下2階建てのビルです。ガラスカーテンウォールを使用した近代的なデザインで、視認性の高い外観です。間取りは複数あり、コンパクトな部屋は20坪ほど、広い部屋は80坪あります。床はフリーアクセスになっています。基本的に男女別トイレと給湯設備が室内に設置されていますが、部屋によって仕様が変わるので、ご相談ください。ACN築地242ビルは新富町駅(4番出口)の他に築地駅(4番出口)徒歩2分、八丁堀駅(出口)徒歩8分で利用も可能です。

