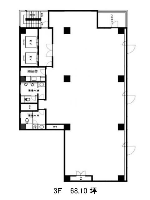
3階は現在募集がありません
ACN築地242ビル 3階
物件概要
ACN築地242ビルのテナント募集中区画
現在、空室がございません。
アクセス
ACN築地242ビルの物件情報
ACN築地242ビル(中央区築地)は新富町駅(4番出口)から徒歩2分の賃貸オフィスです。
新大橋通りを西へ入ってすぐの、静かな通りに面した地上9階・地下2階建てのビルです。ガラスカーテンウォールを使用した近代的なデザインで、視認性の高い外観です。間取りは複数あり、コンパクトな部屋は20坪ほど、広い部屋は80坪あります。床はフリーアクセスになっています。基本的に男女別トイレと給湯設備が室内に設置されていますが、部屋によって仕様が変わるので、ご相談ください。
ACN築地242ビルは新富町駅(4番出口)の他に築地駅(4番出口)徒歩2分、八丁堀駅(出口)徒歩8分で利用も可能です。


