協和ビルのテナント募集中区画
| 階数 | 面積 | 賃料(共益費含む) | 保証金 | 入居可能日 | 検討リスト | 詳細 |
|---|---|---|---|---|---|---|
| 4 | 58.09坪 | 応相談(応相談) | 応相談 | 2026年4月上旬 |
…新着物件
協和ビルのアクセス
協和ビルの物件情報
協和ビル(中央区東日本橋)は浅草橋駅(A1番出口)から徒歩4分の賃貸オフィスです。隅田川と神田川の合流点、「柳橋」に面した角地に建つ物件です。外観はブルーグレーのタイル張りでシンプルな中にも自然と目を引くデザイン。
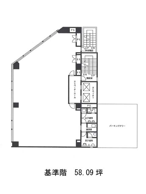
基準階は約58坪の中規模オフィスで、やや変形の間取りながら、室内には柱がなく、水回りも端に集約されているため、レイアウト効率に優れています。OAフロアを採用しており、配線やレイアウトの自由度も高く、クリエイティブ系やIT系の企業にもおすすめです。タワーパーキングを併設し、車利用のビジネスにも対応可能。目の前には神田川と隅田川が流れ、都心ながら水辺の景観を感じられる癒しのロケーション。隅田川テラスもすぐそばで、休憩やリフレッシュにも最適な環境が整っています。協和ビルは浅草橋駅(A1番出口)の他に馬喰町駅(5番出口)徒歩5分、東日本橋駅(出口)徒歩7分で利用も可能です。

