9階は現在募集がありません
1フロア募集区画あり

協和ビル 9階

前の写真 次の写真

物件概要

物件番号

642-00109-90

物件名

協和ビル

所在地

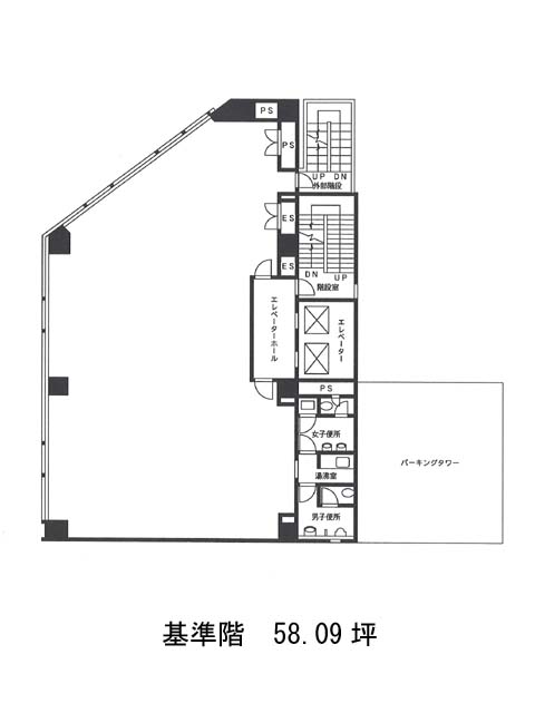
面積

58.09坪

賃料(共益費含)


入居日

募集終了

保証金

礼金

更新料

償却費

竣工

1985年12月

構造

SRC

規模

地上9階

トイレ

男女別

空調

個別空調

エレベーター

セキュリティ

駐車場

耐震

新耐震基準

基準階天井高

2450mm

空室延床面積

58.09坪

最寄駅

情報更新日

2026/04/02

協和ビルのテナント募集中区画

階数 面積 賃料(共益費含む) 保証金 入居可能日 検討リスト 詳細
4 58.09坪 応相談(応相談) 応相談 2026年5月上旬
…新着物件

協和ビルのアクセス

協和ビルの物件情報

協和ビル(中央区東日本橋)は浅草橋駅(A1番出口)から徒歩4分の賃貸オフィスです。
隅田川と神田川の合流点、「柳橋」に面した角地に建つ物件です。外観はブルーグレーのタイル張りでシンプルな中にも自然と目を引くデザイン。
基準階は約58坪の中規模オフィスで、やや変形の間取りながら、室内には柱がなく、水回りも端に集約されているため、レイアウト効率に優れています。OAフロアを採用しており、配線やレイアウトの自由度も高く、クリエイティブ系やIT系の企業にもおすすめです。タワーパーキングを併設し、車利用のビジネスにも対応可能。目の前には神田川と隅田川が流れ、都心ながら水辺の景観を感じられる癒しのロケーション。隅田川テラスもすぐそばで、休憩やリフレッシュにも最適な環境が整っています。
協和ビルは浅草橋駅(A1番出口)の他に馬喰町駅(5番出口)徒歩5分、東日本橋駅(出口)徒歩7分で利用も可能です。

近隣のエリア・駅から探す