6階は現在募集がありません
3フロア募集区画あり

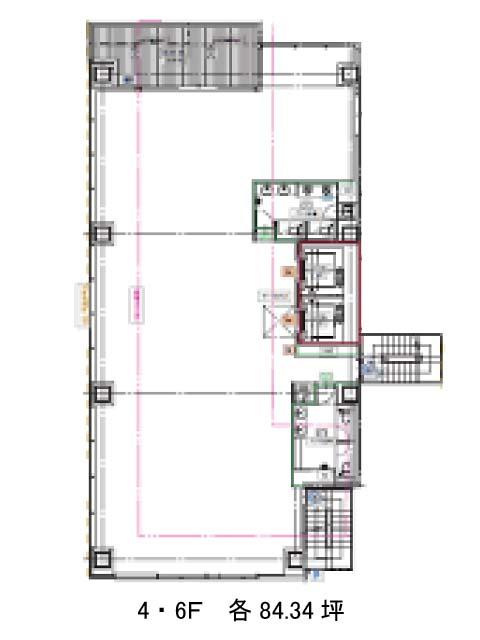
クロスシー東日本橋ビル 6階

前の写真 次の写真

物件概要

物件番号

642-00302-6

物件名

クロスシー東日本橋ビル

所在地

面積

84.34坪

賃料(共益費含)


入居日

募集終了

保証金

礼金

更新料

償却費

竣工

2021年4月

構造

S造

規模

地上8階

トイレ

男女別

空調

個別空調

エレベーター

セキュリティ

駐車場

耐震

新耐震基準

基準階天井高

2700mm

空室延床面積

217.10坪

最寄駅

情報更新日

2025/12/02

クロスシー東日本橋ビルのテナント募集中区画

階数 面積 賃料(共益費含む) 保証金 入居可能日 検討リスト 詳細
1 48.56坪 応相談(応相談) 応相談 2026年6月上旬
3 84.27坪 応相談(応相談) 応相談 2026年1月上旬
5 84.27坪 応相談(応相談) 応相談 2026年4月上旬
…新着物件

アクセス

クロスシー東日本橋ビルの物件情報

クロスシー東日本橋ビル(中央区東日本橋)は馬喰町駅(5番出口)から徒歩5分の賃貸オフィスです。
産業会館通りの角地に建ち、視認性が高いビルです。大きなガラス面とデザイン性のある配色の外観は、個性的で目をひくでしょう。2021年竣工の築浅ビルです。設備としてEV2基・非常階段2箇所・執務室内の男女別トイレがあり個別空調を導入しています。貸室にテラスがある他、屋上にも庭園がありリフレッシュにご利用頂けます。床は配線がしやすいOAフロアで、天井は2700㎜で開放感があるでしょう。周辺は分譲マンション・オフィスビルが多く建ち並びます。
クロスシー東日本橋ビルは馬喰町駅(5番出口)の他に東日本橋駅(出口)徒歩5分、浅草橋駅(A1番出口)徒歩6分で利用も可能です。

近隣のエリア・駅から探す