3階は現在募集がありません
1フロア募集区画あり

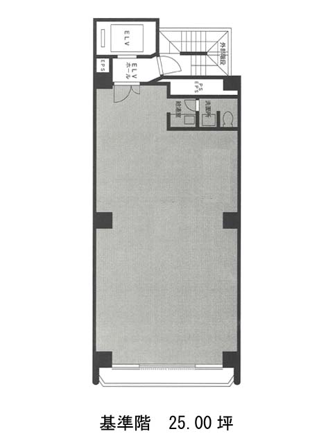
イワモトビル 3階

前の写真 次の写真

物件概要

物件番号

644-00025-10

物件名

イワモトビル

所在地

面積

25.00坪

賃料(共益費含)


入居日

募集終了

保証金

礼金

更新料

償却費

竣工

1991年3月

構造

SRC

規模

地上9階

トイレ

男女共用

空調

個別空調

エレベーター

セキュリティ

駐車場

耐震

新耐震基準

基準階天井高

空室延床面積

25.00坪

最寄駅

情報更新日

2025/11/25

イワモトビルのテナント募集中区画

階数 面積 賃料(共益費含む) 保証金 入居可能日 検討リスト 詳細
2 25.00坪 330,000円/月(13,200円/坪) 150万円
…新着物件

イワモトビルのアクセス

イワモトビルの物件情報

イワモトビル(中央区日本橋横山町)は東日本橋駅(B3番出口)から徒歩3分の賃貸オフィスです。
イワモトビルは東日本橋駅(B3番出口)の他に馬喰町駅(5番出口)徒歩3分、馬喰横山駅(A4番出口)徒歩4分で利用も可能です。

近隣のエリア・駅から探す