イワモトビルのテナント募集中区画
| 階数 | 面積 | 賃料(共益費含む) | 保証金 | 入居可能日 | 検討リスト | 詳細 |
|---|---|---|---|---|---|---|
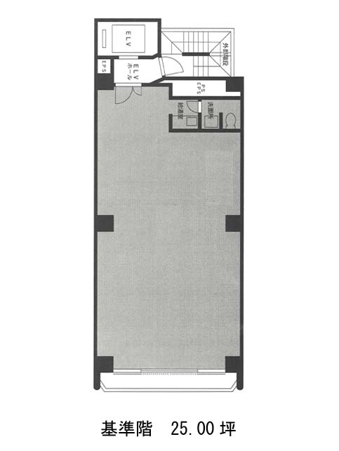
| 2 | 25.00坪 | 330,000円/月(13,200円/坪) | 150万円 | 即 |
…新着物件
イワモトビルのアクセス
イワモトビルの物件情報
イワモトビル(中央区日本橋横山町)は東日本橋駅(B3番出口)から徒歩3分の賃貸オフィスです。イワモトビルは東日本橋駅(B3番出口)の他に馬喰町駅(5番出口)徒歩3分、馬喰横山駅(A4番出口)徒歩4分で利用も可能です。

