7階は現在募集がありません
3フロア募集区画あり

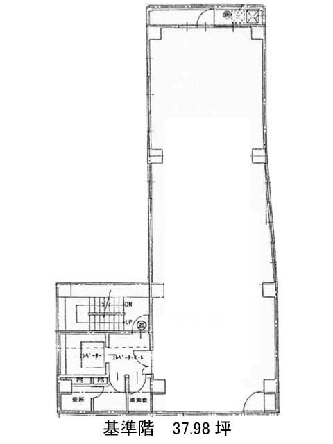
Y’sビル 7階

前の写真 次の写真

物件概要

物件番号

645-00071-10

物件名

Y’sビル

所在地

面積

37.98坪

賃料(共益費含)


入居日

募集終了

保証金

礼金

更新料

償却費

竣工

1986年7月

構造

SRC

規模

地上9階

トイレ

男女別

空調

個別空調

エレベーター

セキュリティ

駐車場

耐震

新耐震基準

基準階天井高

空室延床面積

113.94坪

最寄駅

情報更新日

2025/12/26

Y’sビルのテナント募集中区画

階数 面積 賃料(共益費含む) 保証金 入居可能日 検討リスト 詳細
4 37.98坪 626,670円/月(16,500円/坪) 341万円 相談
5 37.98坪 626,670円/月(16,500円/坪) 341万円 相談
9 37.98坪 626,670円/月(16,500円/坪) 341万円 相談
…新着物件

アクセス

Y’sビルの物件情報

Y’sビル(中央区日本橋兜町)は茅場町駅(12番出口)から徒歩3分の賃貸オフィスです。
Y’sビルは茅場町駅(12番出口)の他に日本橋駅(D1番出口)徒歩6分、八丁堀駅(A5番出口)徒歩6分で利用も可能です。

近隣のエリア・駅から探す