Y’sビル 9階
物件概要
物件番号
645-00071-20物件名
Y’sビル所在地
- 東京都中央区日本橋兜町16-5
- アクセスマップ
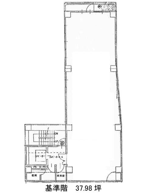
面積
37.98坪賃料(共益費含)
月額626,670円(16,500円/坪)
入居日
相談保証金
3,418,200円礼金
1ケ月更新料
新1ケ月償却費
1ケ月竣工
1986年7月構造
SRC規模
地上9階トイレ
男女別空調
個別空調エレベーター
有セキュリティ
駐車場
無耐震
新耐震基準基準階天井高
空室延床面積
113.94坪情報更新日
2025/12/26Y’sビルのテナント募集中区画
| 階数 | 面積 | 賃料(共益費含む) | 保証金 | 入居可能日 | 検討リスト | 詳細 |
|---|---|---|---|---|---|---|
| 4 | 37.98坪 | 626,670円/月(16,500円/坪) | 341万円 | 相談 | ||
| 5 | 37.98坪 | 626,670円/月(16,500円/坪) | 341万円 | 相談 | ||
| 9 | 37.98坪 | 626,670円/月(16,500円/坪) | 341万円 | 相談 |
…新着物件
アクセス
Y’sビルの物件情報
Y’sビル(中央区日本橋兜町)は茅場町駅(12番出口)から徒歩3分の賃貸オフィスです。Y’sビルは茅場町駅(12番出口)の他に日本橋駅(D1番出口)徒歩6分、八丁堀駅(A5番出口)徒歩6分で利用も可能です。

