地下1階 102は現在募集がありません
4フロア募集区画あり

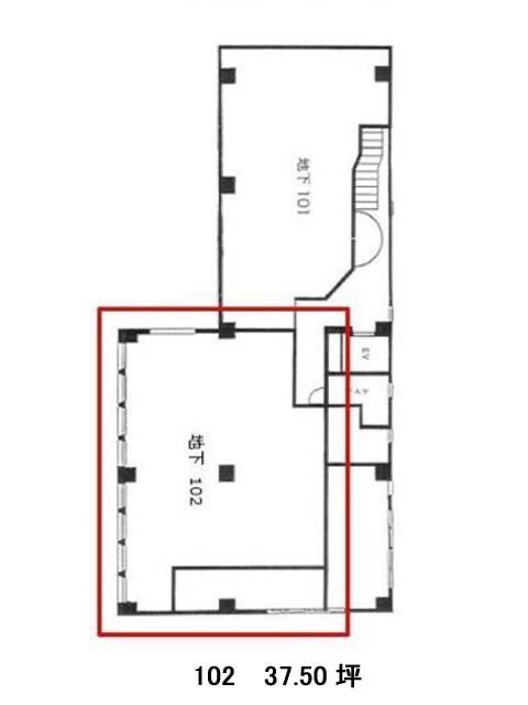
第1井上ビル 地下1階 102

前の写真 次の写真

物件概要

物件番号

646-00013-122

物件名

第1井上ビル

所在地

面積

37.50坪

賃料(共益費含)


入居日

募集終了

保証金

礼金

更新料

償却費

竣工

1972年9月

構造

SRC

規模

地上7階/地下1階

トイレ

男女別

空調

個別空調

エレベーター

セキュリティ

駐車場

耐震

旧耐震基準

基準階天井高

空室延床面積

93.61坪

最寄駅

情報更新日

2026/03/11

第1井上ビルのテナント募集中区画

階数 面積 賃料(共益費含む) 保証金 入居可能日 検討リスト 詳細
1 20.82坪 755,766円/月(36,300円/坪) 466万円 相談
1 23.90坪 867,570円/月(36,300円/坪) 535万円 相談
3 28.55坪 502,480円/月(17,600円/坪) 296万円
3 20.34坪 357,984円/月(17,600円/坪) 211万円 相談
…新着物件

第1井上ビルのアクセス

第1井上ビルの物件情報

第1井上ビル(中央区日本橋茅場町)は茅場町駅(出口)から徒歩1分の賃貸オフィスです。
第1井上ビルは茅場町駅(出口)の他に八丁堀駅(A4番出口)徒歩7分、日本橋駅(D1番出口)徒歩8分で利用も可能です。

近隣のエリア・駅から探す