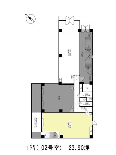
第1井上ビル 1階 102
物件概要
物件番号
646-00013-127物件名
第1井上ビル所在地
- 東京都中央区日本橋茅場町2-14-1
- アクセスマップ
面積
23.90坪賃料(共益費含)
月額867,570円(36,300円/坪)
入居日
相談保証金
5,353,600円礼金
なし更新料
新1ケ月償却費
2ケ月竣工
1972年9月構造
SRC規模
地上7階/地下1階トイレ
男女別空調
個別空調エレベーター
有セキュリティ
有駐車場
無耐震
旧耐震基準基準階天井高
空室延床面積
93.61坪情報更新日
2026/03/11第1井上ビルのテナント募集中区画
| 階数 | 面積 | 賃料(共益費含む) | 保証金 | 入居可能日 | 検討リスト | 詳細 |
|---|---|---|---|---|---|---|
| 1 | 20.82坪 | 755,766円/月(36,300円/坪) | 466万円 | 相談 | ||
| 1 | 23.90坪 | 867,570円/月(36,300円/坪) | 535万円 | 相談 | ||
| 3 | 28.55坪 | 502,480円/月(17,600円/坪) | 296万円 | 即 | ||
| 3 | 20.34坪 | 357,984円/月(17,600円/坪) | 211万円 | 相談 |
…新着物件
第1井上ビルのアクセス
第1井上ビルの物件情報
第1井上ビル(中央区日本橋茅場町)は茅場町駅(出口)から徒歩1分の賃貸オフィスです。第1井上ビルは茅場町駅(出口)の他に八丁堀駅(A4番出口)徒歩7分、日本橋駅(D1番出口)徒歩8分で利用も可能です。

