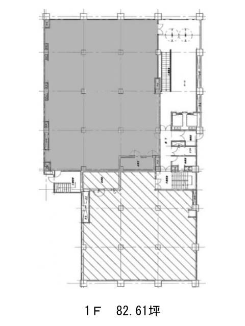
日本ビルディング本館 1階
物件概要
日本ビルディング本館のテナント募集中区画
| 階数 | 面積 | 賃料(共益費含む) | 保証金 | 入居可能日 | 検討リスト | 詳細 |
|---|---|---|---|---|---|---|
| 1 | 82.61坪 | 応相談(応相談) | 応相談 | 即 |
…新着物件
日本ビルディング本館のアクセス
日本ビルディング本館の物件情報
日本ビルディング本館(中央区日本橋茅場町)は茅場町駅(9番出口)から徒歩3分の賃貸オフィスです。地上7階建て(耐震補強済み)。落ち着いたグレー調の外観と整然とした窓割りが印象的なこちらのビル。見た目通り、堅実なスペックを備えたオフィスビルです。基準階は約210坪と広々としており、OAフロアにより配線もすっきり。男女別トイレと給湯室の水回りは貸室外に設置されています。貸室と水回りが別空間にあることにより、気持ちの切り替えにもなりそう。その他設備としては個別空調、エレベーター2基、機械警備、駐車場。
ロケーションは日本橋茅場町エリアで、周囲は落ち着いたビジネス街です。日本ビルディング本館は茅場町駅(9番出口)の他に日本橋駅(D2番出口)徒歩6分、水天宮前駅(6番出口)徒歩7分で利用も可能です。

