稲村・北辰ビルのテナント募集中区画
| 階数 | 面積 | 賃料(共益費含む) | 保証金 | 入居可能日 | 検討リスト | 詳細 |
|---|---|---|---|---|---|---|
| 8 | 48.00坪 | 844,800円/月(17,600円/坪) | 576万円 | 2025年12月上旬 |
…新着物件
アクセス
稲村・北辰ビルの物件情報
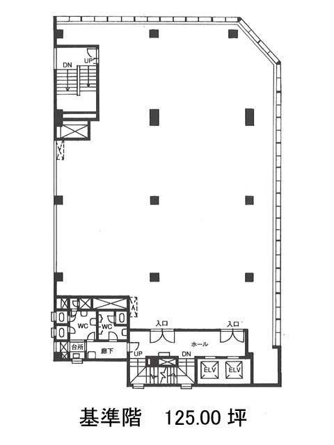
稲村・北辰ビル(中央区日本橋茅場町)は茅場町駅(6番出口)から徒歩1分の賃貸オフィスです。永代通りに面して建てられている9階建てのビルです。角地に立地しているため、採光性は高いでしょう。外観は、ライトグレーのパネル貼りで重厚感のある物件です。1階にはコンビニが入っているので、来客の際の良い目印にもなりますし、毎日のお買い物にも重宝しそうです。間取りはほぼ長方形でOAフロアのため、レイアウトはしやすいでしょう。セキュリティは機械警備を導入しているので安心です。周辺はコンビニや銀行、ランチに便利な飲食店が充実しています。稲村・北辰ビルは茅場町駅(6番出口)の他に日本橋駅(D1番出口)徒歩6分、八丁堀駅(A5番出口)徒歩7分で利用も可能です。

