4階は現在募集がありません
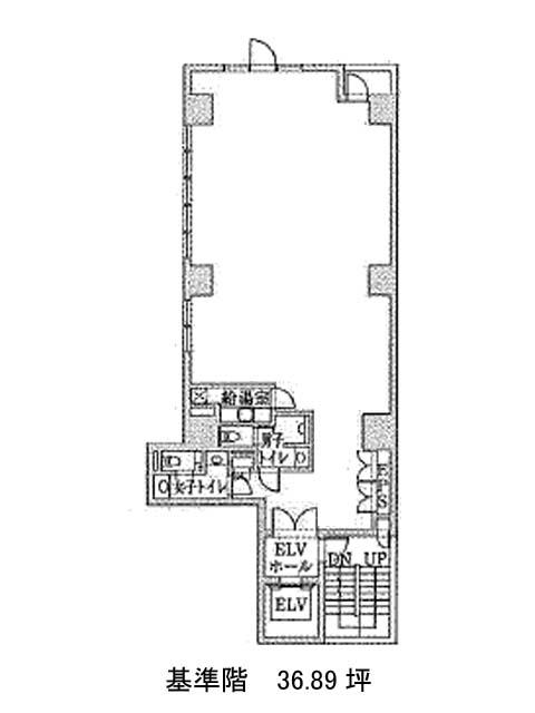
ヨシヤ日本橋ビル 4階
物件概要
ヨシヤ日本橋ビルのテナント募集中区画
現在、空室がございません。
アクセス
ヨシヤ日本橋ビルの物件情報
ヨシヤ日本橋ビル(中央区日本橋小伝馬町)は小伝馬町駅(3番出口)から徒歩2分の賃貸オフィスです。ヨシヤ日本橋ビルは小伝馬町駅(3番出口)の他に新日本橋駅(5番出口)徒歩4分、馬喰町駅(2番出口)徒歩7分で利用も可能です。

