アクセスビルのテナント募集中区画
| 階数 | 面積 | 賃料(共益費含む) | 保証金 | 入居可能日 | 検討リスト | 詳細 |
|---|---|---|---|---|---|---|
| 7 | 64.84坪 | 応相談(応相談) | 応相談 | 即 |
…新着物件
アクセス
アクセスビルの物件情報
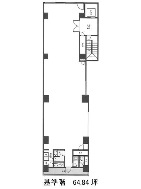
アクセスビル(中央区日本橋人形町)は浜町駅(出口)から徒歩5分の賃貸オフィスです。浜町緑道公園に面した、地上7階・地下1階建てのビルです。ガラス窓を多用した洗練されたデザインの外観です。奥行きの広いビルですが、路地にも接しているので、ビル密集地ながら圧迫感がありません。基準階は64.84坪の長方形の間取りです。無柱空間とフリーアクセスの床で、レイアウトしやすくなっています。給湯室と男女別トイレが室内に設置されています。浜町緑道公園内にはベンチが設置されていて、近隣住人やビジネスマンの憩いの場として利用されています。アクセスビルは浜町駅(出口)の他に水天宮前駅(7番出口)徒歩5分、人形町駅(A2番出口)徒歩5分で利用も可能です。

