5階は現在募集がありません
1フロア募集区画あり

アクセスビル 5階

前の写真 次の写真

物件概要

物件番号

652-00143-30

物件名

アクセスビル

所在地

面積

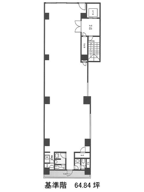
64.84坪

賃料(共益費含)


入居日

募集終了

保証金

礼金

更新料

償却費

竣工

1990年3月

構造

SRC

規模

地上7階/地下1階

トイレ

男女別

空調

個別空調

エレベーター

セキュリティ

駐車場

耐震

新耐震基準

基準階天井高

2500mm

空室延床面積

64.84坪

最寄駅

情報更新日

2025/11/05

アクセスビルのテナント募集中区画

階数 面積 賃料(共益費含む) 保証金 入居可能日 検討リスト 詳細
7 64.84坪 応相談(応相談) 応相談
…新着物件

アクセス

アクセスビルの物件情報

アクセスビル(中央区日本橋人形町)は浜町駅(出口)から徒歩5分の賃貸オフィスです。
浜町緑道公園に面した、地上7階・地下1階建てのビルです。ガラス窓を多用した洗練されたデザインの外観です。奥行きの広いビルですが、路地にも接しているので、ビル密集地ながら圧迫感がありません。基準階は64.84坪の長方形の間取りです。無柱空間とフリーアクセスの床で、レイアウトしやすくなっています。給湯室と男女別トイレが室内に設置されています。浜町緑道公園内にはベンチが設置されていて、近隣住人やビジネスマンの憩いの場として利用されています。
アクセスビルは浜町駅(出口)の他に水天宮前駅(7番出口)徒歩5分、人形町駅(A2番出口)徒歩5分で利用も可能です。

近隣のエリア・駅から探す