6階は現在募集がありません
1フロア募集区画あり

林ビル 6階

前の写真 次の写真

物件概要

物件番号

655-00066-40

物件名

林ビル

所在地

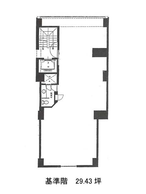
面積

29.43坪

賃料(共益費含)


入居日

募集終了

保証金

礼金

更新料

償却費

竣工

1974年7月

構造

RC

規模

地上8階/地下1階

トイレ

男女共用

空調

個別空調

エレベーター

セキュリティ

駐車場

耐震

旧耐震基準

基準階天井高

2400mm

空室延床面積

29.43坪

最寄駅

情報更新日

2026/05/21

林ビルのテナント募集中区画

階数 面積 賃料(共益費含む) 保証金 入居可能日 検討リスト 詳細
4 29.43坪 323,730円/月(11,000円/坪) 147万円 2026年7月上旬
…新着物件

林ビルのアクセス

林ビルの物件情報

林ビル(中央区日本橋馬喰町)は馬喰町駅(1番出口)から徒歩1分の賃貸オフィスです。
林ビルは馬喰町駅(1番出口)の他に馬喰横山駅(A1番出口)徒歩2分、東日本橋駅(A4番出口)徒歩4分で利用も可能です。

近隣のエリア・駅から探す