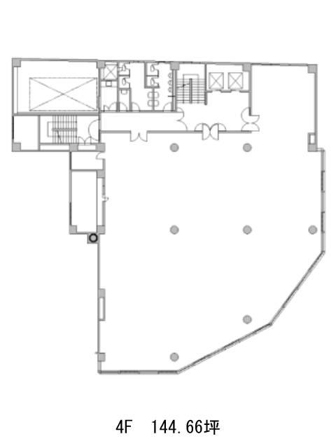
4階は現在募集がありません
三井住友銀行浅草橋南ビル 4階
物件概要
三井住友銀行浅草橋南ビルのテナント募集中区画
現在、空室がございません。
アクセス
三井住友銀行浅草橋南ビルの物件情報
三井住友銀行浅草橋南ビル(中央区日本橋馬喰町)は馬喰町駅(6番出口)から徒歩2分の賃貸オフィスです。カーブ状の壁面が特徴的な外観をした、地上8階地下1階のビルです。江戸通りと靖国通りの交差点に建ち、視認性が高いでしょう。名称の通り1・2階は銀行が入っています。管理状態が良好で、築年数は経ちますが綺麗な状態を保っており、耐震補強工事も済んでおります。広い交差点側に窓が並び、十分な採光がとれるでしょう。周辺はオフィスビル・分譲マンション・ホテルが建ち並ぶエリアです。ビル前に地下鉄の出入口が複数あり、又シンボリックな外観で来客時にわかりやすいでしょう。三井住友銀行浅草橋南ビルは馬喰町駅(6番出口)の他に浅草橋駅(A2番出口)徒歩3分、東日本橋駅(B3番出口)徒歩6分で利用も可能です。

