MUTOH浜町ビルのテナント募集中区画
| 階数 | 面積 | 賃料(共益費含む) | 保証金 | 入居可能日 | 検討リスト | 詳細 |
|---|---|---|---|---|---|---|
| 8 | 99.85坪 | 応相談(応相談) | 応相談 | 2026年3月上旬 |
…新着物件
アクセス
MUTOH浜町ビルの物件情報
MUTOH浜町ビル(中央区日本橋浜町)は浜町駅(A1番出口)から徒歩4分の賃貸オフィスです。清洲橋通り沿い、明治座の斜向かいに位置する本物件は、間口が広く、重厚な佇まいが印象的。グレー基調の外観はシンプルながらも品があり、エントランスも高天井で高級感ある造りです。
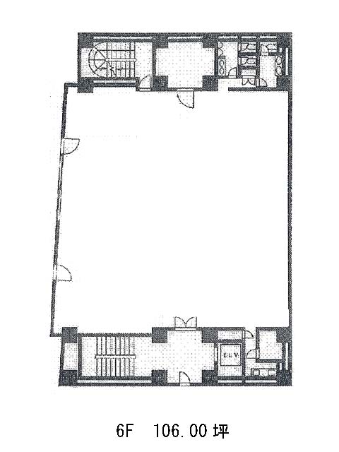
基準階は約103坪とゆとりある広さに加え、柱の張り出しがない整形に近い台形で、OAフロア仕様。内装プランの自由度も高く、効率的なレイアウトが可能です。水回りは室内の隅にまとまっているため、執務スペースとの動線もスムーズ。併設の駐車場も利用可能で、来客対応や社用車利用が多い企業にもフィットします。MUTOH浜町ビルは浜町駅(A1番出口)の他に人形町駅(A4番出口)徒歩6分、馬喰横山駅(A3番出口)徒歩6分で利用も可能です。

