MUTOH浜町ビル 8階
物件概要
物件番号
657-00018-61物件名
MUTOH浜町ビル所在地
- 東京都中央区日本橋浜町2-13-6
- アクセスマップ
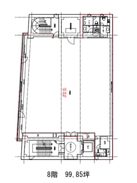
面積
99.85坪賃料(共益費含)
:応相談応相談
入居日
2026年3月上旬保証金
応相談礼金
なし更新料
なし償却費
なし竣工
1988年7月構造
SRC規模
地上8階/地下1階トイレ
男女別空調
個別空調エレベーター
有セキュリティ
駐車場
有耐震
新耐震基準基準階天井高
2520mm空室延床面積
99.85坪情報更新日
2026/03/03MUTOH浜町ビルのテナント募集中区画
| 階数 | 面積 | 賃料(共益費含む) | 保証金 | 入居可能日 | 検討リスト | 詳細 |
|---|---|---|---|---|---|---|
| 8 | 99.85坪 | 応相談(応相談) | 応相談 | 2026年3月上旬 |
…新着物件
MUTOH浜町ビルのアクセス
MUTOH浜町ビルの物件情報
MUTOH浜町ビル(中央区日本橋浜町)は浜町駅(A1番出口)から徒歩4分の賃貸オフィスです。清洲橋通り沿い、明治座の斜向かいに位置する本物件は、間口が広く、重厚な佇まいが印象的。グレー基調の外観はシンプルながらも品があり、エントランスも高天井で高級感ある造りです。
基準階は約103坪とゆとりある広さに加え、柱の張り出しがない整形に近い台形で、OAフロア仕様。内装プランの自由度も高く、効率的なレイアウトが可能です。水回りは室内の隅にまとまっているため、執務スペースとの動線もスムーズ。併設の駐車場も利用可能で、来客対応や社用車利用が多い企業にもフィットします。MUTOH浜町ビルは浜町駅(A1番出口)の他に人形町駅(A4番出口)徒歩6分、馬喰横山駅(A3番出口)徒歩6分で利用も可能です。

