平和MKビルのテナント募集中区画
| 階数 | 面積 | 賃料(共益費含む) | 保証金 | 入居可能日 | 検討リスト | 詳細 |
|---|---|---|---|---|---|---|
| 5 | 25.50坪 | 347,820円/月(13,640円/坪) | 153万円 | 即 |
…新着物件
アクセス
平和MKビルの物件情報
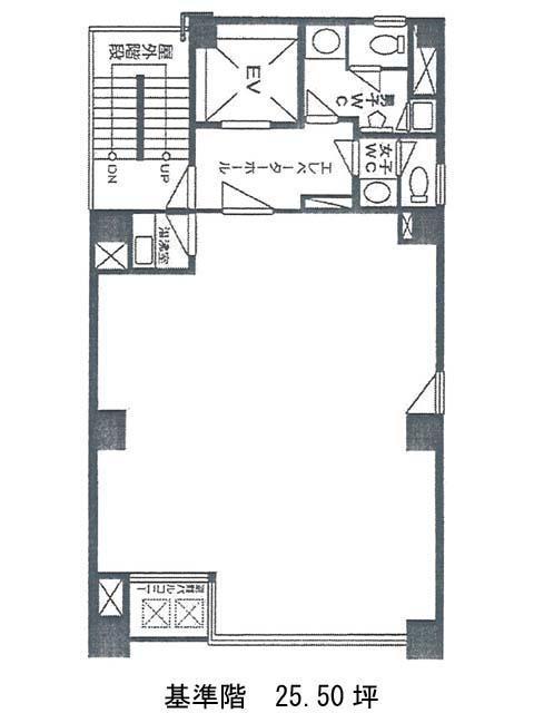
平和MKビル(中央区日本橋浜町)は浜町駅(出口)から徒歩3分の賃貸オフィスです。浜町公園向かいの角地に建つ、7階建てのビルです。ベージュのパネルとタイルを組み合わせた、温かみを感じる外観です。向かいが公園なので、視界が開けて解放感があります。基準階は25.5坪の長方形の間取りで、柱が邪魔をしないつくりになっているので、レイアウトしやすいと思います。給湯室は室内に、男女別トイレは共用部に設置されています。浜町公園は中央区の中で最大の面積を誇る広さなので、リフレッシュに最適な場所になると思います。公園地下には有料駐車場があり、約90台分の駐車スペースがあります。平和MKビルは浜町駅(出口)の他に水天宮前駅(5番出口)徒歩8分、人形町駅(A1番出口)徒歩9分で利用も可能です。

