旭光ビルのテナント募集中区画
| 階数 | 面積 | 賃料(共益費含む) | 保証金 | 入居可能日 | 検討リスト | 詳細 |
|---|---|---|---|---|---|---|
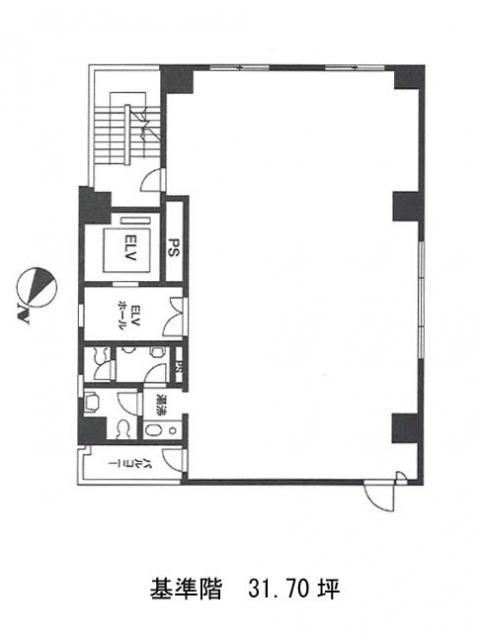
| 9 | 31.70坪 | 523,050円/月(16,500円/坪) | 190万円 | 2026年3月中旬 |
…新着物件
旭光ビルのアクセス
旭光ビルの物件情報
旭光ビル(中央区日本橋浜町)は浜町駅(出口)から徒歩5分の賃貸オフィスです。旭光ビルは浜町駅(出口)の他に森下駅(A1番出口)徒歩8分、水天宮前駅(5番出口)徒歩8分で利用も可能です。

