THE GATE 日本橋人形町 6階
物件概要
物件番号
658-00086-6物件名
THE GATE 日本橋人形町所在地
- 東京都中央区日本橋富沢町7-16
- アクセスマップ
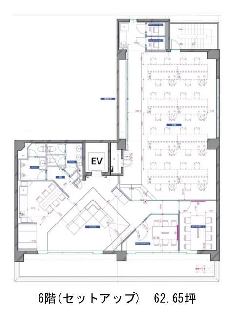
面積
62.65坪賃料(共益費含)
月額1,653,960円(26,400円/坪)
入居日
2026年4月上旬保証金
10,525,200円礼金
なし更新料
なし償却費
なし竣工
1992年9月構造
SRC規模
地上9階/地下1階トイレ
男女別空調
個別空調エレベーター
有セキュリティ
有駐車場
無耐震
新耐震基準基準階天井高
空室延床面積
62.65坪情報更新日
2026/02/18THE GATE 日本橋人形町のテナント募集中区画
| 階数 | 面積 | 賃料(共益費含む) | 保証金 | 入居可能日 | 検討リスト | 詳細 |
|---|---|---|---|---|---|---|
| 6 | 62.65坪 | 1,653,960円/月(26,400円/坪) | 1,052万円 | 2026年4月上旬 |
…新着物件
THE GATE 日本橋人形町のアクセス
THE GATE 日本橋人形町の物件情報
THE GATE 日本橋人形町(中央区日本橋富沢町)は人形町駅(A4番出口)から徒歩4分の賃貸オフィスです。外観は全体的にグレーを基調とした色合いで、とてもシンプルなデザインとなっております。エントランスホールはとても広々としており、高級感と清潔感があります。ビル内にはOAフロアが備えられており、トイレは男女別となっております。セキュリティは機械警備を導入しており、耐震性も新耐震基準であるため、安心できます。また周辺にはコンビニや飲食店、郵便局などが複数あるためとても利便性が高いです。THE GATE 日本橋人形町は人形町駅(A4番出口)の他に馬喰横山駅(A3番出口)徒歩6分、東日本橋駅(B1番出口)徒歩6分で利用も可能です。

