堀留ゼネラルビル 5階
物件概要
物件番号
659-00033-60物件名
堀留ゼネラルビル所在地
- 東京都中央区日本橋堀留町1-9-6
- アクセスマップ
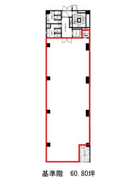
面積
60.80坪賃料(共益費含)
月額936,320円(15,400円/坪)
入居日
即保証金
5,958,400円礼金
なし更新料
なし償却費
なし竣工
1986年6月構造
SRC規模
地上8階/地下1階トイレ
男女別空調
個別空調エレベーター
有セキュリティ
有駐車場
無耐震
新耐震基準基準階天井高
2450mm空室延床面積
121.60坪情報更新日
2026/03/13堀留ゼネラルビルのテナント募集中区画
| 階数 | 面積 | 賃料(共益費含む) | 保証金 | 入居可能日 | 検討リスト | 詳細 |
|---|---|---|---|---|---|---|
| 5 | 60.80坪 | 936,320円/月(15,400円/坪) | 595万円 | 即 | ||
| 6 | 60.80坪 | 936,320円/月(15,400円/坪) | 595万円 | 即 |
…新着物件
堀留ゼネラルビルのアクセス
堀留ゼネラルビルの物件情報
堀留ゼネラルビル(中央区日本橋堀留町)は人形町駅(A5番出口)から徒歩4分の賃貸オフィスです。1986年竣工地上8階のビルです。白の外壁と大きなガラス窓でスマートな外観をしています。間取りは長方形で柱が中央に無く、オフィス家具の配置がしやすいでしょう。コンセント類の配置が容易なOAフロアを採用しています。設備としてEV・駐車場・バルコニー・執務室外の男女別トイレ・個別空調があります。セキュリティとして機械警備が導入されています。前面道路は一車線の一方通行で、歩道は街路樹が並び落ち着いた雰囲気の街並みです。堀留ゼネラルビルは人形町駅(A5番出口)の他に小伝馬町駅(3番出口)徒歩5分、新日本橋駅(5番出口)徒歩8分で利用も可能です。

