日本橋人形町スクエア 9階
物件概要
物件番号
659-00009-110物件名
日本橋人形町スクエア所在地
- 東京都中央区日本橋堀留町1-8-11
- アクセスマップ
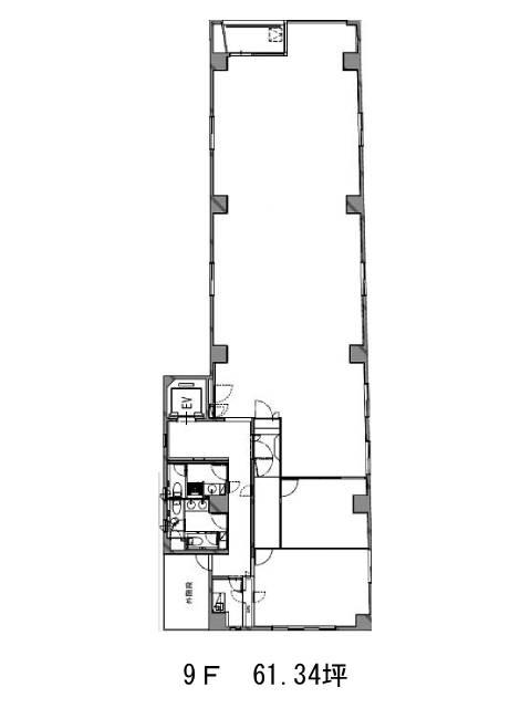
面積
61.34坪賃料(共益費含)
月額1,484,428円(24,200円/坪)
入居日
即保証金
9,446,360円礼金
なし更新料
なし償却費
なし竣工
1985年3月構造
SRC規模
地上9階トイレ
男女別空調
個別空調エレベーター
有セキュリティ
駐車場
無耐震
新耐震基準基準階天井高
空室延床面積
61.34坪情報更新日
2026/02/18日本橋人形町スクエアのテナント募集中区画
| 階数 | 面積 | 賃料(共益費含む) | 保証金 | 入居可能日 | 検討リスト | 詳細 |
|---|---|---|---|---|---|---|
| 9 | 61.34坪 | 1,484,428円/月(24,200円/坪) | 944万円 | 即 |
…新着物件
日本橋人形町スクエアのアクセス
日本橋人形町スクエアの物件情報
日本橋人形町スクエア(中央区日本橋堀留町)は人形町駅(A5番出口)から徒歩3分の賃貸オフィスです。水天宮通りに面して建てられている9階建てのビルです。外観は、1階のエントランス部分は黒の御影石張りですが2階以上は白のパネル貼りです。1階には飲食店が入っているので来客者への目印になるでしょう。募集時期やフロアにより分割区画もあります。室外には男女別のトイレと給湯スペースがあります。周辺は飲食店も充実しているエリアなので、ランチタイムはお店選びに苦労しないでしょう。徒歩圏内にはコンビニ、スーパー、ドラッグストアが揃っており、気軽に買い物が出来ます。日本橋人形町スクエアは人形町駅(A5番出口)の他に小伝馬町駅(1番出口)徒歩6分、水天宮前駅(8番出口)徒歩7分で利用も可能です。

