7階は現在募集がありません
1フロア募集区画あり

日本橋人形町スクエア 7階

前の写真 次の写真

物件概要

物件番号

659-00009-90

物件名

日本橋人形町スクエア

所在地

面積

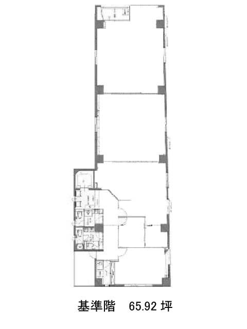
65.92坪

賃料(共益費含)


入居日

募集終了

保証金

礼金

更新料

償却費

竣工

1985年3月

構造

SRC

規模

地上9階

トイレ

男女別

空調

個別空調

エレベーター

セキュリティ

駐車場

耐震

新耐震基準

基準階天井高

空室延床面積

61.34坪

最寄駅

情報更新日

2026/02/18

日本橋人形町スクエアのテナント募集中区画

階数 面積 賃料(共益費含む) 保証金 入居可能日 検討リスト 詳細
9 61.34坪 1,484,428円/月(24,200円/坪) 944万円
…新着物件

日本橋人形町スクエアのアクセス

日本橋人形町スクエアの物件情報

日本橋人形町スクエア(中央区日本橋堀留町)は人形町駅(A5番出口)から徒歩3分の賃貸オフィスです。
水天宮通りに面して建てられている9階建てのビルです。外観は、1階のエントランス部分は黒の御影石張りですが2階以上は白のパネル貼りです。1階には飲食店が入っているので来客者への目印になるでしょう。募集時期やフロアにより分割区画もあります。室外には男女別のトイレと給湯スペースがあります。周辺は飲食店も充実しているエリアなので、ランチタイムはお店選びに苦労しないでしょう。徒歩圏内にはコンビニ、スーパー、ドラッグストアが揃っており、気軽に買い物が出来ます。
日本橋人形町スクエアは人形町駅(A5番出口)の他に小伝馬町駅(1番出口)徒歩6分、水天宮前駅(8番出口)徒歩7分で利用も可能です。

近隣のエリア・駅から探す