日本橋本町THビル 4階
物件概要
物件番号
661-00230-14物件名
日本橋本町THビル所在地
- 東京都中央区日本橋本町4-5-13
- アクセスマップ
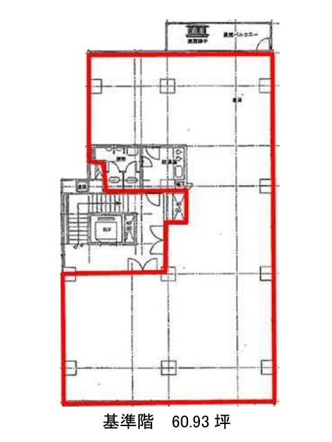
面積
60.93坪賃料(共益費含)
月額1,172,902円(19,250円/坪)
入居日
2026年5月中旬保証金
8,834,850円礼金
なし更新料
新1ケ月償却費
2ケ月竣工
1963年5月構造
SRC規模
地上9階/地下1階トイレ
男女別空調
個別空調エレベーター
有セキュリティ
有駐車場
無耐震
耐震補強済み基準階天井高
2340mm空室延床面積
60.93坪情報更新日
2026/02/06日本橋本町THビルのテナント募集中区画
| 階数 | 面積 | 賃料(共益費含む) | 保証金 | 入居可能日 | 検討リスト | 詳細 |
|---|---|---|---|---|---|---|
| 4 | 60.93坪 | 1,172,902円/月(19,250円/坪) | 883万円 | 2026年5月中旬 |
…新着物件
日本橋本町THビルのアクセス
日本橋本町THビルの物件情報
日本橋本町THビル(中央区日本橋本町)は新日本橋駅(8番出口)から徒歩3分の賃貸オフィスです。昭和通りから少し入った場所に立地しており、周辺は落ち着いたオフィス街です。外観はグレーのパネル貼りで横一列に並んだ大きな窓が特徴的なビルです。室内には男女別のトイレがあります。また、ちょっとしたバルコニーもあるので気分転換にも良いでしょう。間取りはコの字型ですが床はフリーアクセスのためレイアウトはしやすいでしょう。周辺にはあまり飲食店はありませんが、4、5分程度神田駅方面に向かって行くとたくさんの飲食店があります。日本橋本町THビルは新日本橋駅(8番出口)の他に小伝馬町駅(出口2)徒歩6分、三越前駅(A10番出口)徒歩7分で利用も可能です。

