5階は現在募集がありません
1フロア募集区画あり

日本橋本町THビル 5階

前の写真 次の写真

物件概要

物件番号

661-00230-15

物件名

日本橋本町THビル

所在地

面積

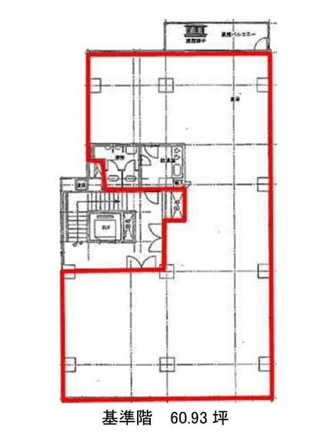
60.93坪

賃料(共益費含)


入居日

募集終了

保証金

礼金

更新料

償却費

竣工

1963年5月

構造

SRC

規模

地上9階/地下1階

トイレ

男女別

空調

個別空調

エレベーター

セキュリティ

駐車場

耐震

耐震補強済み

基準階天井高

2340mm

空室延床面積

60.93坪

最寄駅

情報更新日

2026/04/07

日本橋本町THビルのテナント募集中区画

階数 面積 賃料(共益費含む) 保証金 入居可能日 検討リスト 詳細
4 60.93坪 1,139,391円/月(18,700円/坪) 883万円 2026年5月中旬
…新着物件

日本橋本町THビルのアクセス

日本橋本町THビルの物件情報

日本橋本町THビル(中央区日本橋本町)は新日本橋駅(8番出口)から徒歩3分の賃貸オフィスです。
昭和通りから少し入った場所に立地しており、周辺は落ち着いたオフィス街です。外観はグレーのパネル貼りで横一列に並んだ大きな窓が特徴的なビルです。室内には男女別のトイレがあります。また、ちょっとしたバルコニーもあるので気分転換にも良いでしょう。間取りはコの字型ですが床はフリーアクセスのためレイアウトはしやすいでしょう。周辺にはあまり飲食店はありませんが、4、5分程度神田駅方面に向かって行くとたくさんの飲食店があります。
日本橋本町THビルは新日本橋駅(8番出口)の他に小伝馬町駅(出口2)徒歩6分、三越前駅(A10番出口)徒歩7分で利用も可能です。

近隣のエリア・駅から探す