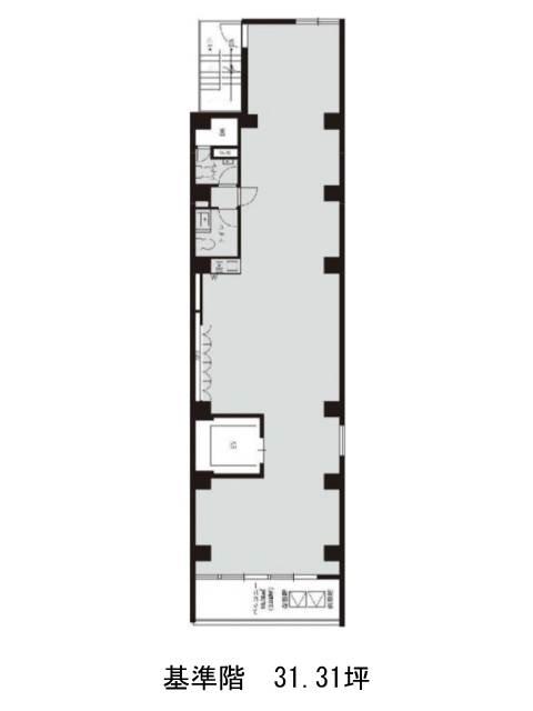
5階は現在募集がありません
VORT日本橋本銀通り 5階
物件概要
VORT日本橋本銀通りのテナント募集中区画
現在、空室がございません。
VORT日本橋本銀通りのアクセス
VORT日本橋本銀通りの物件情報
VORT日本橋本銀通り(中央区日本橋本町)は新日本橋駅(6番出口)から徒歩3分の賃貸オフィスです。VORT日本橋本銀通りは新日本橋駅(6番出口)の他に小伝馬町駅(出口)徒歩6分、三越前駅(A10番出口)徒歩6分で利用も可能です。

