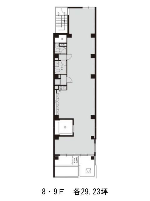
SG日本橋本町 8階
物件概要
SG日本橋本町のテナント募集中区画
| 階数 | 面積 | 賃料(共益費含む) | 保証金 | 入居可能日 | 検討リスト | 詳細 |
|---|---|---|---|---|---|---|
| 8 | 29.23坪 | 応相談(応相談) | 応相談 | 即 |
…新着物件
アクセス
SG日本橋本町の物件情報
SG日本橋本町(中央区日本橋本町)は新日本橋駅(6番出口)から徒歩3分の賃貸オフィスです。SG日本橋本町は新日本橋駅(6番出口)の他に小伝馬町駅(出口)徒歩6分、三越前駅(A10番出口)徒歩6分で利用も可能です。

