市橋ビル 4階
物件概要
物件番号
661-00056-40物件名
市橋ビル所在地
- 東京都中央区日本橋本町4-15-11
- アクセスマップ
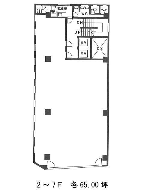
面積
65.00坪賃料(共益費含)
月額1,001,000円(15,400円/坪)
入居日
即保証金
7,475,000円礼金
なし更新料
新1ケ月償却費
2ケ月竣工
1963年10月構造
SRC規模
地上9階/地下1階トイレ
男女別空調
個別空調エレベーター
有セキュリティ
有駐車場
無耐震
旧耐震基準基準階天井高
空室延床面積
380.48坪情報更新日
2026/02/27市橋ビルのテナント募集中区画
…新着物件
市橋ビルのアクセス
市橋ビルの物件情報
市橋ビル(中央区日本橋本町)は小伝馬町駅(3番出口)から徒歩3分の賃貸オフィスです。江戸通り沿いに建てられた賃貸事務所物件です。竣工は1963年ですが、1993年にリニューアルしているので、そこまで経年は感じさせません。外観は石張りで大きな窓が特徴的なビルです。室内はほぼ長方形に近い間取りです。南側が足元までの大きな窓で採光は良好です。トイレは男女別で、給湯室スペースと共に室外に設置されています。周辺には多くのオフィスビルが集まっていますが、飲食店やコンビニ、スーパーもあるので気軽に食事が出来ます。市橋ビルは小伝馬町駅(3番出口)の他に新日本橋駅(8番出口)徒歩3分、馬喰町駅(2番出口)徒歩7分で利用も可能です。

