5階は現在募集がありません
PMO八丁堀V 5階
物件概要
PMO八丁堀Vのテナント募集中区画
現在、空室がございません。
アクセス
PMO八丁堀Vの物件情報
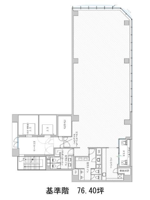
PMO八丁堀V(中央区入船)は八丁堀駅(出口)から徒歩3分の賃貸オフィスです。2023年4月竣工予定の地上11階建ビルです。黒い壁面とガラスウォールの外壁で、エントランス付近や各階に植栽が施され癒しを演出しています。機械式駐車場6台・個別空調・男女別トイレがあります。各階にパントリーも設けられており、屋外に出られるテラスは、リフレッシュスペースとして良いでしょう。女性トイレにはパウダールームがあります。セキュリティーはエントランス・EV・貸室前と、安心の3段階です。PMO八丁堀Vは八丁堀駅(出口)の他に新富町駅(7番出口)徒歩4分、築地駅(3番出口)徒歩7分で利用も可能です。

