4階は現在募集がありません
アーバンネット入船ビル 4階
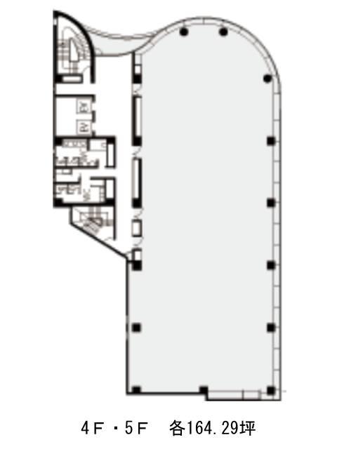
物件概要
アーバンネット入船ビルのテナント募集中区画
現在、空室がございません。
アクセス
アーバンネット入船ビルの物件情報
アーバンネット入船ビル(中央区入船)は新富町駅(7番出口)から徒歩1分の賃貸オフィスです。アーバンネット入船ビルは新富町駅(7番出口)の他に築地駅(3番出口)徒歩4分、八丁堀駅(出口)徒歩6分で利用も可能です。

