TSUKIJI EAST SQUARE 4階
物件概要
物件番号
663-00042-72物件名
TSUKIJI EAST SQUARE所在地
- 東京都中央区入船2-3-7
- アクセスマップ
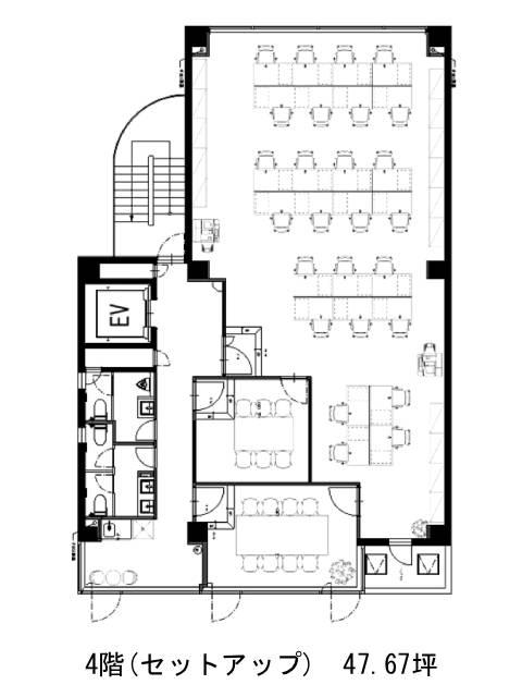
面積
47.67坪賃料(共益費含)
月額1,048,740円(22,000円/坪)
入居日
2026年5月上旬保証金
5,720,400円礼金
なし更新料
なし償却費
なし竣工
1990年4月構造
S造規模
地上8階トイレ
男女別空調
個別空調エレベーター
有セキュリティ
駐車場
無耐震
新耐震基準基準階天井高
空室延床面積
95.34坪情報更新日
2026/02/09TSUKIJI EAST SQUAREのテナント募集中区画
| 階数 | 面積 | 賃料(共益費含む) | 保証金 | 入居可能日 | 検討リスト | 詳細 |
|---|---|---|---|---|---|---|
| 2 | 47.67坪 | 1,048,740円/月(22,000円/坪) | 572万円 | 2026年5月上旬 | ||
| 4 | 47.67坪 | 1,048,740円/月(22,000円/坪) | 572万円 | 2026年5月上旬 |
…新着物件
TSUKIJI EAST SQUAREのアクセス
TSUKIJI EAST SQUAREの物件情報
TSUKIJI EAST SQUARE(中央区入船)は新富町駅(7番出口)から徒歩4分の賃貸オフィスです。新大橋通りから少し入ったところに建てられている8階建てのビルです。外観は、グレーのパネル貼りで窓面が横に大きくスタイリッシュな印象の物件です。室外に男女別のトイレがあります。区画によっては、室内に会議室がすでに設けられています。間取りはほぼ長方形で床はフリーアクセスのためレイアウトはしやすいでしょう。周辺は、駅周りを中心に様々な飲食店、カフェがあるので、お昼時の食事も困りません。スーパーやコンビニもあるので、買い物も不自由しないでしょう。TSUKIJI EAST SQUAREは新富町駅(7番出口)の他に八丁堀駅(出口)徒歩5分、築地駅(3番出口)徒歩7分で利用も可能です。

