8階は現在募集がありません
1フロア募集区画あり

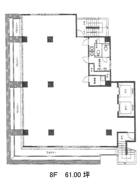
八丁堀FRONT 8階

前の写真 次の写真

物件概要

物件番号

665-00101-70

物件名

八丁堀FRONT

所在地

面積

61.00坪

賃料(共益費含)


入居日

募集終了

保証金

礼金

更新料

償却費

竣工

1989年3月

構造

SRC

規模

地上9階/地下1階

トイレ

男女別

空調

個別空調

エレベーター

セキュリティ

駐車場

耐震

耐震補強済み

基準階天井高

2400mm

空室延床面積

105.50坪

最寄駅

情報更新日

2025/11/19

八丁堀FRONTのテナント募集中区画

階数 面積 賃料(共益費含む) 保証金 入居可能日 検討リスト 詳細
4 105.50坪 1,624,700円/月(15,400円/坪) 1,107万円 2025年12月上旬
…新着物件

アクセス

八丁堀FRONTの物件情報

八丁堀FRONT(中央区八丁堀)は八丁堀駅(A5番出口)から徒歩2分の賃貸オフィスです。
エントランスはブラウンで重厚感のある色調、高層階は白のすっきりとした色調の地上9階地下1階ビルです。角地に建ち視認性が高いでしょう。1階に飲食店が入っています。2面採光で、明るい室内が期待できます。貸室への出入口が3箇所あり、動線の自由度が高まるでしょう。設備として貸室外の男女別トイレ・個別空調・EV2基・非常階段2箇所があり、光ケーブル引き込み済となります。床は配線がしやすいOAフロアとなります。
八丁堀FRONTは八丁堀駅(A5番出口)の他に茅場町駅(2番出口)徒歩6分、宝町駅(A8番出口)徒歩6分で利用も可能です。

近隣のエリア・駅から探す