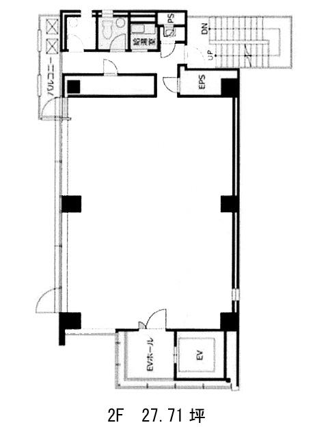
2階は現在募集がありません
VORT八丁堀 2階
物件概要
VORT八丁堀のテナント募集中区画
現在、空室がございません。
アクセス
VORT八丁堀の物件情報
VORT八丁堀(中央区八丁堀)は八丁堀駅(B3番出口)から徒歩1分の賃貸オフィスです。VORT八丁堀は八丁堀駅(B3番出口)の他に茅場町駅(1番出口)徒歩7分、宝町駅(A2番出口)徒歩9分で利用も可能です。

