4階は現在募集がありません
3フロア募集区画あり

合人社東京八丁堀ビル 4階

前の写真 次の写真

物件概要

物件番号

665-00375-3

物件名

合人社東京八丁堀ビル

所在地

面積

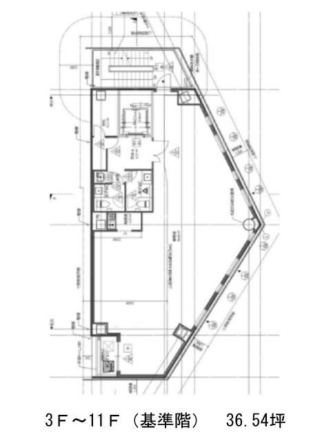
36.54坪

賃料(共益費含)


入居日

募集終了

保証金

礼金

更新料

償却費

竣工

2024年3月

構造

S造

規模

地上11階

トイレ

男女別

空調

個別空調

エレベーター

セキュリティ

駐車場

耐震

新耐震基準

基準階天井高

2700mm

空室延床面積

146.16坪

最寄駅

情報更新日

2026/04/21

合人社東京八丁堀ビルのテナント募集中区画

階数 面積 賃料(共益費含む) 保証金 入居可能日 検討リスト 詳細
8-9F 73.08坪 1,808,730円/月(24,750円/坪) 応相談 相談
8 36.54坪 884,268円/月(24,200円/坪) 482万円
9 36.54坪 904,365円/月(24,750円/坪) 493万円
…新着物件

合人社東京八丁堀ビルのアクセス

合人社東京八丁堀ビルの物件情報

合人社東京八丁堀ビル(中央区八丁堀)は八丁堀駅(B1番出口)から徒歩1分の賃貸オフィスです。
八丁堀駅前交差点に面した角地で視認性、アクセス性共に申し分なし。
市松模様を思わせる外観デザインが印象的で、来訪者へのイメージアップにも効果的です。
基準階は約37坪とコンパクトながら、天井高2,700mm・OAフロア・ガラス面の多さが相まって、広がりを感じる明るい執務空間が広がります。
室外に男女別トイレを、室内には給湯スペースとミニバルコニーを備え、働きやすさにも配慮。
さらにビル前には郵便ポストがあり、発送業務に一役買っています。
合人社東京八丁堀ビルは八丁堀駅(B1番出口)の他に茅場町駅(1番出口)徒歩7分、宝町駅(A2番出口)徒歩7分で利用も可能です。

近隣のエリア・駅から探す