合人社東京八丁堀ビル 9階
物件概要
物件番号
665-00375-8物件名
合人社東京八丁堀ビル所在地
- 東京都中央区八丁堀3-22
- アクセスマップ
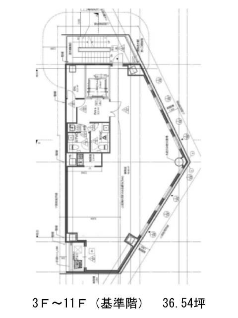
面積
36.54坪賃料(共益費含)
月額924,462円(25,300円/坪)
入居日
即保証金
5,042,520円礼金
なし更新料
なし償却費
なし竣工
2024年3月構造
S造規模
地上11階トイレ
男女別空調
個別空調エレベーター
有セキュリティ
駐車場
無耐震
新耐震基準基準階天井高
2700mm空室延床面積
146.16坪情報更新日
2026/03/13合人社東京八丁堀ビルのテナント募集中区画
| 階数 | 面積 | 賃料(共益費含む) | 保証金 | 入居可能日 | 検討リスト | 詳細 |
|---|---|---|---|---|---|---|
| 8-9F | 73.08坪 | 1,808,730円/月(24,750円/坪) | 応相談 | 相談 | ||
| 8 | 36.54坪 | 884,268円/月(24,200円/坪) | 482万円 | 即 | ||
| 9 | 36.54坪 | 924,462円/月(25,300円/坪) | 504万円 | 即 |
…新着物件
合人社東京八丁堀ビルのアクセス
合人社東京八丁堀ビルの物件情報
合人社東京八丁堀ビル(中央区八丁堀)は八丁堀駅(B1番出口)から徒歩1分の賃貸オフィスです。八丁堀駅前交差点に面した角地で視認性、アクセス性共に申し分なし。
市松模様を思わせる外観デザインが印象的で、来訪者へのイメージアップにも効果的です。
基準階は約37坪とコンパクトながら、天井高2,700mm・OAフロア・ガラス面の多さが相まって、広がりを感じる明るい執務空間が広がります。
室外に男女別トイレを、室内には給湯スペースとミニバルコニーを備え、働きやすさにも配慮。
さらにビル前には郵便ポストがあり、発送業務に一役買っています。合人社東京八丁堀ビルは八丁堀駅(B1番出口)の他に茅場町駅(1番出口)徒歩7分、宝町駅(A2番出口)徒歩7分で利用も可能です。

