6階は現在募集がありません
1フロア募集区画あり

高橋ビル 6階

前の写真 次の写真

物件概要

物件番号

665-00007-20

物件名

高橋ビル

所在地

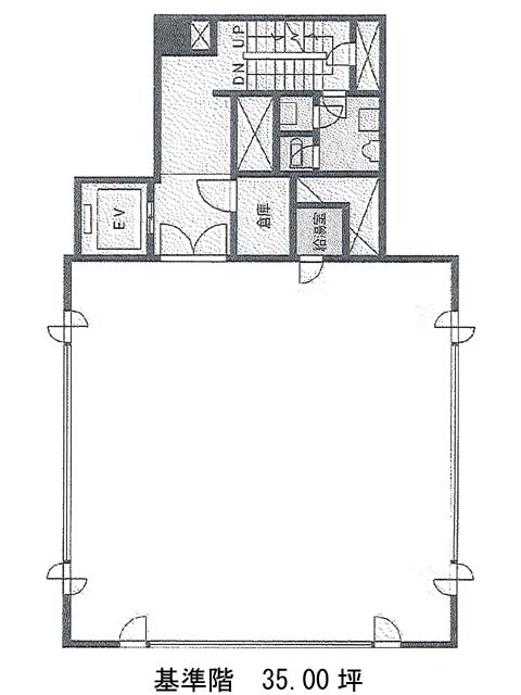
面積

35.00坪

賃料(共益費含)


入居日

募集終了

保証金

礼金

更新料

償却費

竣工

1976年11月

構造

SRC

規模

地上9階

トイレ

男女共用

空調

個別空調

エレベーター

セキュリティ

駐車場

耐震

旧耐震基準

基準階天井高

空室延床面積

35.00坪

最寄駅

情報更新日

2026/03/10

高橋ビルのテナント募集中区画

階数 面積 賃料(共益費含む) 保証金 入居可能日 検討リスト 詳細
4 35.00坪 519,750円/月(14,850円/坪) 241万円
…新着物件

高橋ビルのアクセス

高橋ビルの物件情報

高橋ビル(中央区八丁堀)は八丁堀駅(B3番出口)から徒歩1分の賃貸オフィスです。
亀島川からすぐの9階建てのビルです。大通りに面しているので、来客者への案内がしやすいと思います。現在、1階から3階まではクリニックが入居しています。基準階は35坪の広さがあります。正方形に近い無柱空間なので、レイアウトしやすくなっています。床はフリーアクセスになっているので、すっきりとした配線が可能です。給湯室は室内に設置されています。トイレは階段踊場にあり、フロア毎で男女別に分かれています。
高橋ビルは八丁堀駅(B3番出口)の他に茅場町駅(1番出口)徒歩7分、宝町駅(A2番出口)徒歩9分で利用も可能です。

近隣のエリア・駅から探す