高橋ビルのテナント募集中区画
| 階数 | 面積 | 賃料(共益費含む) | 保証金 | 入居可能日 | 検討リスト | 詳細 |
|---|---|---|---|---|---|---|
| 4 | 35.00坪 | 500,500円/月(14,300円/坪) | 231万円 | 相談 |
…新着物件
アクセス
高橋ビルの物件情報
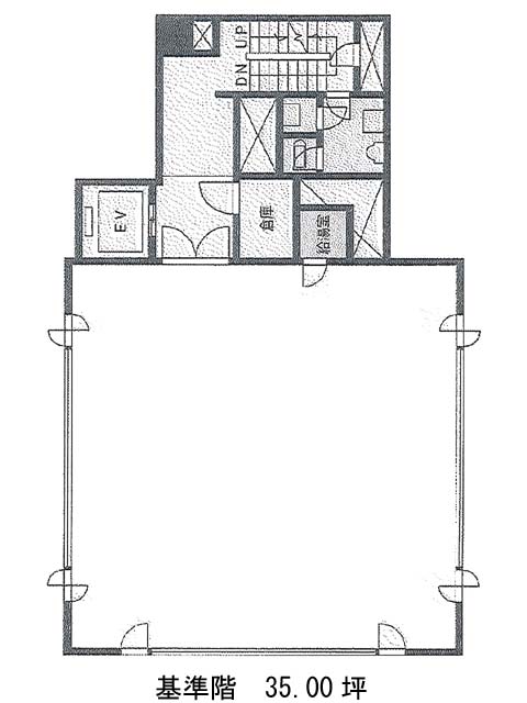
高橋ビル(中央区八丁堀)は八丁堀駅(B3番出口)から徒歩1分の賃貸オフィスです。亀島川からすぐの9階建てのビルです。大通りに面しているので、来客者への案内がしやすいと思います。現在、1階から3階まではクリニックが入居しています。基準階は35坪の広さがあります。正方形に近い無柱空間なので、レイアウトしやすくなっています。床はフリーアクセスになっているので、すっきりとした配線が可能です。給湯室は室内に設置されています。トイレは階段踊場にあり、フロア毎で男女別に分かれています。高橋ビルは八丁堀駅(B3番出口)の他に茅場町駅(1番出口)徒歩7分、宝町駅(A2番出口)徒歩9分で利用も可能です。

