5階は現在募集がありません
1フロア募集区画あり

コア京橋ビル 5階

前の写真 次の写真

物件概要

物件番号

665-00086-50

物件名

コア京橋ビル

所在地

面積

102.50坪

賃料(共益費含)


入居日

募集終了

保証金

礼金

更新料

償却費

竣工

1998年5月

構造

SRC

規模

地上9階/地下1階

トイレ

男女別

空調

個別空調

エレベーター

セキュリティ

駐車場

耐震

新耐震基準

基準階天井高

2500mm

空室延床面積

48.24坪

最寄駅

情報更新日

2026/04/03

コア京橋ビルのテナント募集中区画

階数 面積 賃料(共益費含む) 保証金 入居可能日 検討リスト 詳細
8 48.24坪 1,008,216円/月(20,900円/坪) 747万円 相談
…新着物件

コア京橋ビルのアクセス

コア京橋ビルの物件情報

コア京橋ビル(中央区八丁堀)は八丁堀駅(A5番出口)から徒歩1分の賃貸オフィスです。
ガラス張りの外観が目を引く当ビルは、八丁堀エリアの駅至近に立地。周辺は比較的静かな通りに面しており、都心の利便性と落ち着いた環境を兼ね備えています。
エントランスからエレベーターホールにかけては、ホテルライクな上質な内装が施されており、来訪者にも好印象。明るく広がりのある空間は、日常の出入りも気持ちよくしてくれそうです。
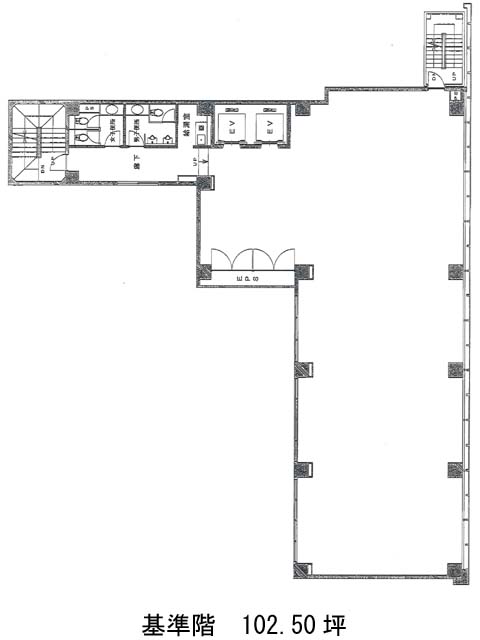
基準階は約103坪で、柱は外周に揃っており、レイアウト効率のよさが魅力。空間を無駄なく使えるため、大人数の執務や部署ごとのゾーニングにも適しています。エレベーターからは貸室へダイレクトイン。水回りが室外に集約されているため、執務エリアはすっきり保ちやすい設計です。
個別空調・OAフロア・男女別トイレ・機械警備など、機能面も十分に整っており、快適な業務環境が実現できます。
コア京橋ビルは八丁堀駅(A5番出口)の他に茅場町駅(2番出口)徒歩5分、宝町駅(A8番出口)徒歩8分で利用も可能です。

近隣のエリア・駅から探す