5階は現在募集がありません
VORT新富町 5階
物件概要
VORT新富町のテナント募集中区画
現在、空室がございません。
VORT新富町のアクセス
VORT新富町の物件情報
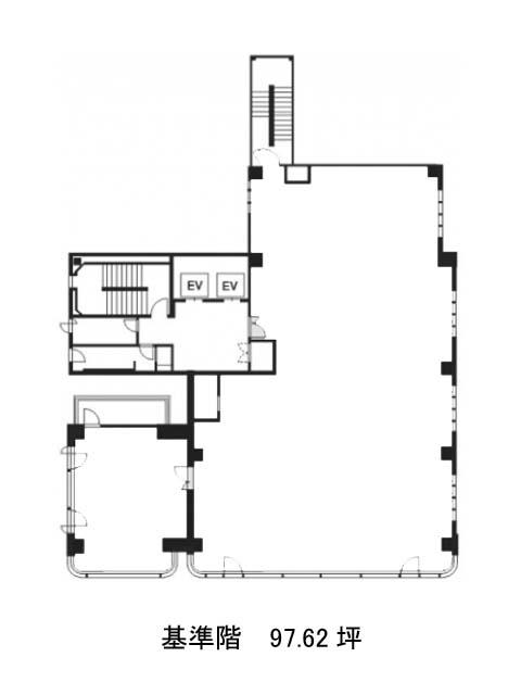
VORT新富町(中央区湊)は新富町駅(7番出口)から徒歩4分の賃貸オフィスです。外観は全体的に白いパネル張りになっており、とてもスタイリッシュな印象があります。エントランスホールはモノトーンな色合いをしており、とても落ち着いた場所となっております。また周辺には、コンビニや飲食店などが複数あるためとても利便性が高いです。ビル内にはOAフロアが備えられており、トイレは男女別となっております。駐車場もあるため、社用車を使う場合も便利です。基準階は約100坪あり、室内はほぼ長方形の形をしているため、比較的レイアウトは組みやすいでしょう。VORT新富町は新富町駅(7番出口)の他に築地駅(3番出口)徒歩7分、八丁堀駅(B3番出口)徒歩9分で利用も可能です。

