2階 ①②は現在募集がありません
1フロア募集区画あり
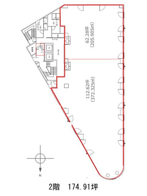
五反田フラットアイアンビル 2階 ①②
物件概要
物件番号
754-00167-20物件名
五反田フラットアイアンビル所在地
- 東京都品川区西五反田7-25-9
- アクセスマップ
面積
174.91坪賃料(共益費含)
−入居日
募集終了保証金
−礼金
−更新料
−償却費
−竣工
1991年9月構造
SRC規模
地上8階/地下1階トイレ
男女別空調
セントラル+個別空調エレベーター
有セキュリティ
有駐車場
有耐震
新耐震基準基準階天井高
2500mm空室延床面積
60.56坪情報更新日
2026/03/04五反田フラットアイアンビルのテナント募集中区画
| 階数 | 面積 | 賃料(共益費含む) | 保証金 | 入居可能日 | 検討リスト | 詳細 |
|---|---|---|---|---|---|---|
| 5 | 60.56坪 | 1,332,320円/月(22,000円/坪) | 726万円 | 即 |
…新着物件
五反田フラットアイアンビルのアクセス
五反田フラットアイアンビルの物件情報
五反田フラットアイアンビル(品川区西五反田)は戸越駅(A3番出口)から徒歩8分の賃貸オフィスです。1991年竣工、地上8階地下1階建SRC造のビルです。白く丸みを帯びた三角形の外観が特徴的で、視認性が高いでしょう。基準階面積は197.81坪。貸室も100坪を超える大規模なものが多くそろっています。設備仕様はEV・空調・OAフロア・非常階段2箇所・貸室外の男女別トイレとなっています。貸室は無柱空間で、オフィス家具の配置がしやすいでしょう。2023年4月に水まわり・共用部のリニューアルが済み更に使い勝手の良いオフィスとなっています。五反田フラットアイアンビルは戸越駅(A3番出口)の他に大崎広小路駅(出口)徒歩9分、戸越銀座駅(出口1)徒歩9分で利用も可能です。

